375 000,00 PLN (7 211,54 PLN)

M-4 w sercu Lumumbowa

Mieszkanie na sprzedaż,
Łódź, Styrska

Kontakt z agentem: TGN S.C.
Opis nieruchomości

Na sprzedaż jasne i przestronne mieszkanie o powierzchni 52 m², położone w Łodzi przy ul. Styrskiej 1. Lokal znajduje się na osiedlu otoczonym zielenią, w niskim bloku z lat 60., w spokojnej części miasta, a jednocześnie bardzo dobrze skomunikowanej z centrum.

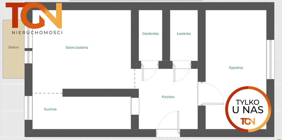
Układ pomieszczeń:


  • salon z wyjściem na balkon,

  • oddzielna, widna kuchnia,

  • sypialnia,

  • łazienka z WC,

  • przedpokój,

  • garderoba.


Mieszkanie jest dwustronne, ustawne, z dużymi oknami, dzięki czemu jest dobrze doświetlone. Na podłogach znajduje się oryginalny parkiet, który można odświeżyć (cyklinowanie).

Duży potencjał aranżacyjny
Istnieje możliwość zmiany układu i wykonania:
➡️ salonu z aneksem kuchennym
➡️ oraz dwóch oddzielnych sypialni

To rozwiązanie znacznie zwiększa funkcjonalność mieszkania i podnosi jego wartość.

Stan mieszkania

Do remontu — co daje możliwość urządzenia przestrzeni zgodnie z własnym stylem.

Atuty nieruchomości:


  • balkon z widokiem na zieleń,

  • garderoba - rzadko spotykana i bardzo praktyczna,

  • niski blok, spokojne otoczenie,

  • duża ilość terenów zielonych wokół.


Lokalizacja
Mieszkanie położone jest w miejscu, które zapewnia szybki dostęp do codziennej infrastruktury — sklepów, punktów usługowych, aptek, placówek edukacyjnych i przystanków komunikacji miejskiej.

Nieruchomość usytuowana w samym sercu kampusu Uniwersytetu Łódzkiego.
Dzięki temu mieszkanie sprawdzi się zarówno dla osób uczących się, pracujących, jak i jako inwestycja pod wynajem. Do uczelni można dojechać łatwo zarówno komunikacją miejską, jak i rowerem.

By kupić nową nieruchomość musisz sprzedać inną?  Skontaktuj się z nami! Zaproponujemy Ci jej odkup lub korzystne warunki sprzedaży i dopilnujemy zgrania terminów.

Plan Nieruchomości
Mapa
Kontakt z agentem

TGN S.C.

Dawid Górski
Nieprawidłowy adres E-mail

Strona korzysta z plików cookie w celu realizacji usług zgodnie z Polityką prywatności. Możesz określić warunki przechowywania lub dostępu do cookie w Twojej przeglądarce.